远野物语(第10/16页)
七十六
长者宅邸为昔日豪农公馆之旧址。其附近有山,名为糠森。据说乃由富豪家丢弃之谷糠而成。山中有一五叶空木,相传其下埋有黄金,至今偶有四处探寻此树之所在者。此豪农往昔约莫为矿山业者,附近仍留有铁渣。恩德之金山与此山相连,就在不远处。
七十七
山口之田尻长三郎乃土渊村首富。当代家主年事已高,曾口述长三郎四十余岁时之遭遇。时值老妇阿秀之子葬礼。是夜,众人诵经完毕,各自返家,唯长三郎因健谈之故,较晚离开。甫出大门,便见檐下有一陌生男子,以雨石为枕,仰躺于地,仔细一看,是为陌生人,似已死去。月夜下,借光一看,只见此人立膝、张口。长三郎胆大,以脚轻摇对方,却无动静。因男子挡住去路,只得跨过其身躯返家。翌晨再来,已了无痕迹,亦无他人见过此男子。然其所枕之石,无论形状、位置,均与昨夜记忆如出一辙。尔后长三郎曰:“当时若能以手仔细确认就好,但半因恐惧,仅以脚触碰,也想不出究竟是何物作怪。”
七十八
以下亦来自同一人之见闻。山口村长藏昔时曾来帮佣,现今年逾七十,仍健在。长藏曾于某夜出游晚归。主人家门面向大槌街道,长藏在门前巧遇自海滨来,身着雪衣之人,朝长藏走近后停住。长藏亦觉有异,只见其转身穿过大街,向对面稻田而去。长藏记得该处应有围墙,定睛一看,果真如此。忽觉惊恐,火速飞奔进屋,向主人禀明此事。日后方闻:同一时刻,新张村某人自海滨归来,却于途中坠马而死。
七十九
长藏之父亦名唤长藏,历代皆至田尻家上工,其妻亦如是。长藏年轻时,某次夜游,初更时分即归来。进门后,见洞前有人影伫立。此人双手伸入怀中,筒袖袖口下垂,脸部看不分明。其妻名唤阿常,长藏猜疑此人莫非阿常情夫?便快步走近。可对方并不往后逃,反走向右侧之玄关。此举轻蔑,惹恼长藏,故更向其逼近。却见此人依旧手拽怀中,倒退而行,自玄关三寸宽之门缝,迅速闪身入屋。然而长藏尚未察觉有异,便伸手往门缝内探索,未料里面拉门竟然紧闭。至此,长藏方心生恐惧,稍稍后退,举头一望,竟见男子紧贴玄关上之云壁*,正俯视自己。其头部低垂,几及于长藏脑门,眼球突出尺余,仿若即将跳出眼眶。此时当真惊恐万分,却非任何凶事之前兆(*:云壁为长押外侧之墙壁)。
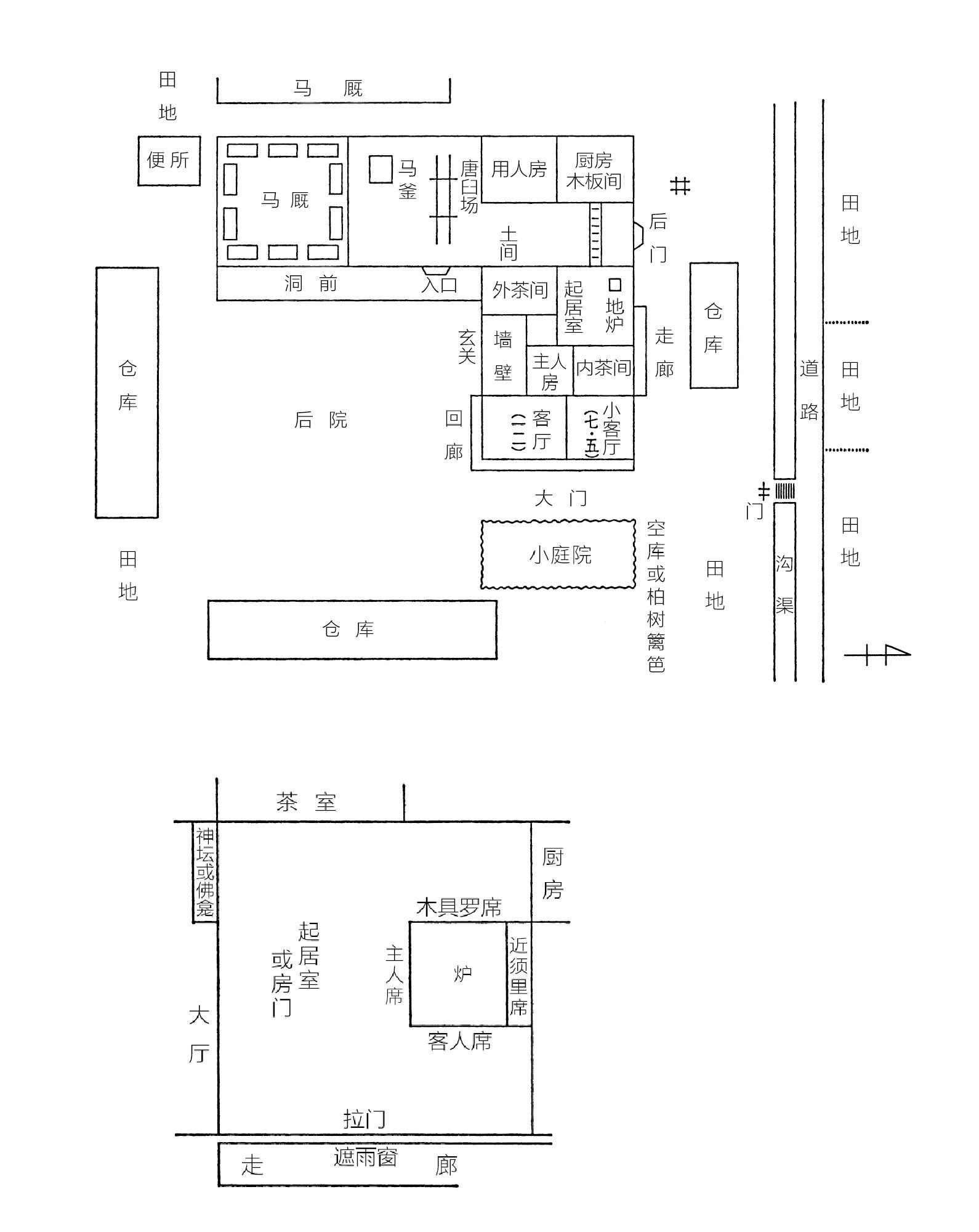
八十
为充分了解前述传闻,须将田尻家以图面表示。远野乡之家屋建筑结构皆与此大同小异。
此户人家大门朝北,然而一般皆是朝东;依上图所示,位于马厩附近。大门称城前,宅邸四周皆为田地,不设围墙。主人之卧房与起居室之间有一小暗室,称为座头部屋。往昔每逢家中设宴,必邀座头到府演出。此房即为座头等候之间。
八十一
栃内小字野崎有人名唤前川万吉。两三年前已死,年三十有余。死前两三年之六月某夜,出游晚归,自门口沿回廊走到转角之际,随意往云壁看去,却见一面色惨白之男子,紧贴其上而眠。万吉因惊吓过度而罹病,然此事却非任何凶事之前兆。田尻氏之子丸吉为其好友,此乃丸吉听此人口述者。

八十二
此事为田尻丸吉之亲身遭遇。少时某夜自起居室起身如厕,进入茶间之际,见一人立于与大厅交界处。当时光线阴暗、人影朦胧,然衣物条纹与眼鼻五官、披头散发之状皆清晰可辨。丸吉虽心生恐惧,仍伸手探寻真伪,未料撞上门板,并触及门上木框。分明伸手不见五指,却见手上有人影映现。再将手伸向其人脸部,面容又映在手上。丸吉返回起居室与人说起,众人提灯前来一探究竟,却已杳无踪迹。丸吉思想先进,聪颖伶俐,且绝非妄言之人。

八十三
山口之大同有名为大洞万之丞之人家,房屋结构稍异于其他人家,如前页之图示。玄关朝向东南,屋龄极为古老。家中有一装盛古文书之竹篮,据说打开便会遭受神鬼惩罚,故未曾打开。