2(第3/3页)
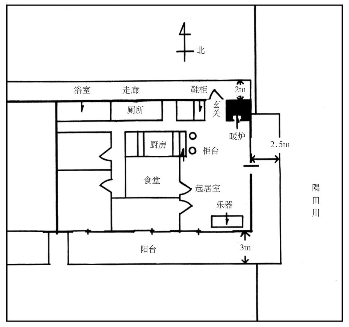
我让Puff陪我去阳台看看。刚刚开门的时候风是朝房间里吹的,所以我想或许阳台这边并不会被淋到。
果然不出所料,偌大的阳台,只要站在南侧无论在哪个位置基本上都不会淋到雨,都被公寓挡住了。
这个房间是在公寓的拐角,阳台也顺着房子的布局折成L形(图三)。如果走到东侧向下看,就能看到浊流翻腾的隅田川。但是走到那边就一定会被淋湿。
我和Puff站在L形阳台的折角处,观看在黑暗中肆虐的暴风雨。脚下的河水恐怕正波涛汹涌吧,但只能看到漆黑一片而看不到水面的情形。
对岸的点点灯火与高速公路的路灯连成一线,透过白色的雨雾映入我们的眼帘。
“这风景让人真想大喊一声!”因为风雨嘈杂,Puff大声地说。对此我也很有同感。

图三 Bird Cage的示意图
[1] 起源于法国,名称来自一九二五年巴黎举办的“巴黎国际现代化工业装饰艺术展览会”(The exposition des Arts Decoratifs)。它反对古典主义单纯手工艺的倾向而主张机械化的美,所以大量使用直线、对称和几何图形的构成,并大量使用了当时的新材料,如钢筋混凝土和合成树脂玻璃。